Venta apartamento 1 dormitorio + patio - Pocitos

475 Pocitos, Montevideo

U$S 0

Oferta Permuta Financia
Dormitorios 1 Dormitorios
Baños 1 Baños
Superficie de Terreno 53 m2
Garage No

Descripción

Venta apartamento 1 dormitorio + patio - Pocitos
Se trata de un apartamento luminoso ubicado en planta baja con vistas al contrafrente de un edificio pequeño y bien mantenido del año 2011 en el barrio Pocitos, cuenta con supermercados, farmacias, restaurantes y comercios en la zona, además de buen acceso a locomoción ya que se encuentra próximo a Bv. Artigas y Av. Brasil. Ideal para inversores ya que se estima una rentabilidad anual de 4.8%.

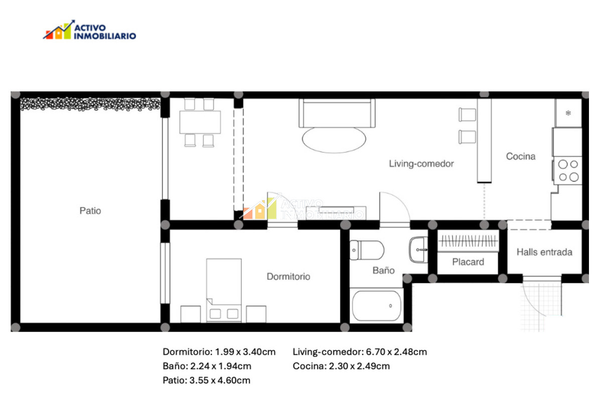
Posee 53m² totales, distribuidos de la siguiente forma:
- Cocina integrada con pileta, extractor, muebles bajo mesada, horno empotrado y barra
- Living-comedor con AA y gran placard
- 1 dormitorio con AA (3.40 x 199cm)
- 1 baño completo
- Patio de 20m² de uso exclusivo
- Losa radiante eléctrica regulable en todos los ambientes
- El edificio cuenta con piscina, parrilleros de uso común en azotea, espacio para colgar la ropa y lavadero

Gastos comunes: 7.750$
Contribución inmobiliaria: 15.243$ anual
Impuesto a primaria: 5.721$ anual
Tributos domiciliarios: 1.750$ bimensual

Se adjunta plano de distribución
___
ACTIVO INMOBILIARIO
Honorarios inmobiliarios: 3% + IVA
Agende su visita!

Detalles de la Propiedad

  • BarrioPocitos
  • VistaContrafrente
  • OrientaciónOeste
  • Total m253
  • Propios m253
  • Dormitorios1
  • Baños1
  • ToiletteNo
  • CocinaIntegrada
  • LivingNo
  • ComedorNo
  • Living ComedorSi
  • Comedor DiarioNo
  • Dep. ServicioNo
  • Baño ServicioNo
  • LavaderoNo
  • Estufa LeñaNo
  • CocheraNo
  • GarageNo
  • EstacionamientoNo
  • CalefacciónLosa Radiante
  • ParrilleroSi

Video

Gastos y Impuestos

  • Gastos Comunes: $ 7.750 (Mensual)
  • Imp.Inmobiliario: $ 15.243
  • Imp. Primaria: $ 5.721